Location
299-307 John Street & 97 St. Joseph’s Drive, Hamilton
Units
723
Category
Mixed-Use
Status
Approved
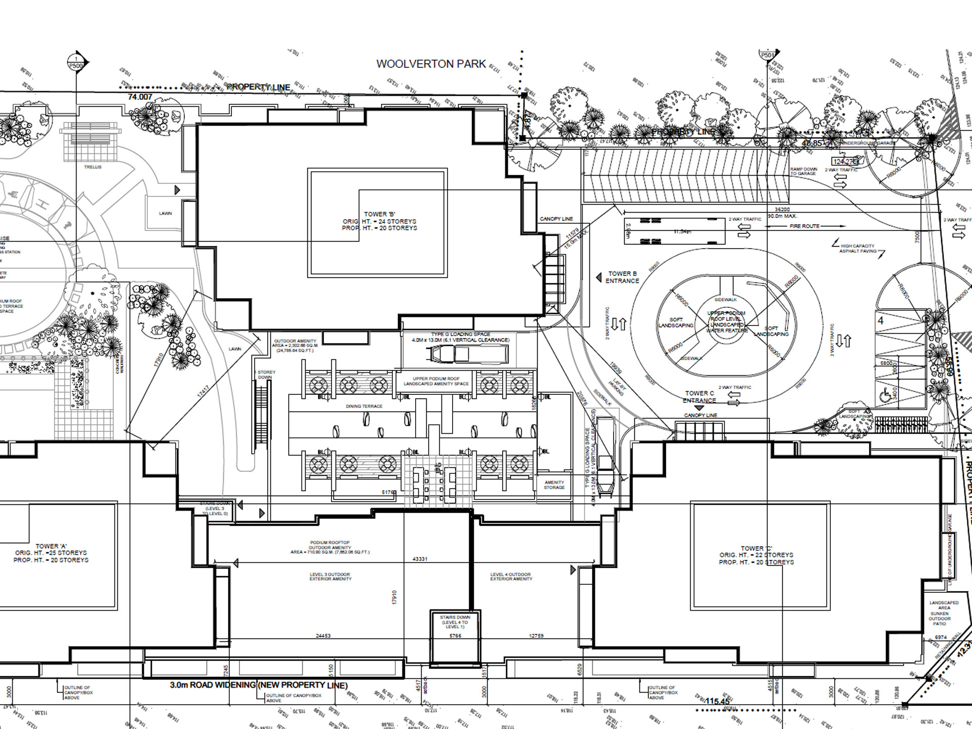
UrbanSolutions secured Zoning By-law Amendment approval at the Ontario Land Tribunal on the subject lands for a high-density mixed-use development consisting of three 20-storey residential towers atop a 6-level podium containing 1,587 m2 of commercial space and rooftop amenity/outdoor space. The development proposal is to be accommodated by 708 vehicular parking spaces contained across 6 interior levels of the building’s podium.
Located less than 400 metres from the Hamilton GO Centre, this project delivers a significant mixed-use intensification opportunity that advances a high-density, transit-supportive form of development that efficiently accommodates growth while introducing new commercial and amenity functions to the area.
