Projects
Our portfolio of completed residential, commercial, mixed-use, institutional, and industrial projects across southern Ontario.
UrbanSolutions facilitated a Zoning By-law Amendment approval and secured Final Site Plan approval.
UrbanSolutions provided planning and development consulting services.
UrbanSolutions secured Official Plan and Zoning By-law approvals.
UrbanSolutions secured approvals for this development at the Ontario Land Tribunal.
UrbanSolutions secured approvals for Official Plan and Zoning By-law Amendment at the Ontario Land Tribunal to facilitate a 14 storey, 227 unit, residential building in downtown Hamilton.
Urban Solutions secured the approval of a Minor Variance application.
Urban Solutions was retained to complete a Draft Plan of Condominium application to facilitate the approval and construction of this development.
UrbanSolutions secured approval of the Official Plan & Zoning By-law Amendment at the Ontario Land Tribunal for a mix of low-rise, mid-rise and high-rise.
The development involved a minor variance and a consent to sever application to obtain the necessary approvals, enabling the construction of the two distinct residential units.
UrbanSolutions secured approval for an Official Plan & Zoning By-law Amendment on the subject lands to permit the development of a mid-rise apartment building.
UrbanSolutions facilitated the Official Plan and Zoning By-law approvals and secured conditional Site Plan approval.
UrbanSolutions secured Final Site Plan, Minor Variance, and Plan of Condominium approval .
UrbanSolutions facilitated the approval of a Minor Variance application and obtained final Site Plan.
UrbanSolutions secured Final Site Plan approval and Minor Variance on the subject lands.
UrbanSolutions secured Official Plan and Zoning By-law Amendments, Minor Site Plan approval, as well as Draft Plan.
UrbanSolutions secured Final Site Plan Amendment approval and Minor Variances to facilitate the renovation and adaptive re-use.
Urban Solutions was retained to prepared an Official Plan Amendment and Zoning Bylaw Amendment.
UrbanSolutions secured Official Plan Amendment and Zoning By-law Amendment approval on the subject lands to facilitate the construction.
UrbanSolutions secured Final Draft Plan of Subdivision, Final Site Plan approval and Building Permits.
UrbanSolutions secured Official Plan and Zoning By-Law Amendment approvals at the Local Planning Appeal Tribunal (LPAT).
Urban Solutions completed a Zoning By-Law Amendment and Site Plan application.
UrbanSolutions assisted in securing Consent to Sever and Site Plan approvals.
UrbanSolutions successfully cleared all conditions required to register the latest Plan of Subdivision, enabling the development.
The Project includes three new sections for proposed reroutes from the existing right-of-way totalling approximately 11 km.
UrbanSolutions secured Final Site Plan Amendment approval and Minor Variances.
Urban Solutions completed a Minor Variance, Site Plan application and Official Plan Amendment.
Garden Heights is a modern luxury townhouse community located at 50 Garden Avenue in Brantford, Ontario.
UrbanSolutions secured approval of a Zoning By-law Amendment for the subject lands.
UrbanSolutions is the authorized planning consultant for LPF Realty Residential Inc. who own the property.
Completed Formal Consultation, a Zoning By-Law Amendment, Site Plan Application, Minor Variance, and Holding Removal to facilitate this development.
UrbanSolutions provided comprehensive planning and development consulting services for DiCenzo Homes' Hampton Park community in Hamilton.
UrbanSolutions facilitated the municipal planning approvals including, Site Plan, Plan of Condominium, Minor Variance, Zoning By-law Amendment for Holding Removal and development coordination of the required Building Permits.
UrbanSolutions secured the required Official Plan Amendment (OPA) and Zoning By-law Amendment (ZBA) for the project and is currently working with City staff and the project team to obtain final Site Plan Approval.
Urban Solutions coordinated and secured Final Site Plan approval of 92,950 ft2 addition to Plant No. 1 and a 57,940 ft2 addition to Plant No. 2.
Urban Solutions prepared a Site Plan Application, Draft Plan of Condominium and Zoning By-Law Amendment.
UrbanSolutions assisted with the Official Plan & Zoning By-law Amendment approvals
UrbanSolutions provided expert testimony in support of a Niagara Escarpment Commission Development Permit.
UrbanSolutions assisted LiUNA to complete a Site Plan application to establish additions to the southerly building.
Urban Solutions secured approvals of Minor Variance applications and Site Plan.
UrbanSolutions secured Zoning By-law Amendment approval at the Ontario Land Tribunal on the subject lands for a high-density mixed-use development.
Urban Solutions prepared a Site Plan Application, Draft Plan of Condominium and a Holding Removal.
Urban Solutions assisted the District School Board of Niagara (DSBN) to provide professional planning.
Urban Solutions coordinated the planning approvals required to advance this phase and worked with City staff and the project team to address technical considerations related to site layout, access, and servicing.
UrbanSolutions secured final Site Plan Approval for this phase, coordinating with City staff, addressing technical comments, and navigating multiple review cycles to secure final approval.
UrbanSolutions provided comprehensive planning services to various school boards across the GTHA. In 2024, our firm was awarded a position on the Halton District School Board’s roster as the prime planning consultant for development projects valued at over $500,000.
Retained to oversee this development by processing an Official Plan Amendment, allowing for a maximum density.
UrbanSolutions coordinated the approval of the Official Plan & Zoning By-law Amendment through Ontario Municipal Board.
An enhanced rental development located at 8 and 22 Hughson Street North
The Pinnacle is a 10-storey, 183-unit development of two residential towers located at the intersection of Garth Street and Rymal Road West. UrbanSolutions joined the project in 2017 and saw it to completion in 2020.
Urban Solutions successfully facilitated the Final Site Plan approval for a 26,850 square foot industrial building.
This development was realized through the completion of a Draft Plan of Subdivision application with an Official Plan and Zoning Amendment applications followed by individual site plan applications.
Urban Solutions was engaged to carry out a site-specific Zoning By-Law Amendment to allow a salvage yard to operate at the new location.
UrbanSolutions provided comprehensive planning support for the Upper James Self Storage facility.
UrbanSolutions chose these lands to call their new home, we designed the office to meet our needs today and for the future.
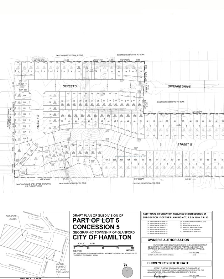
To facilitate the development of this area, a Draft Plan of Subdivision and a Zoning Amendment were necessary.
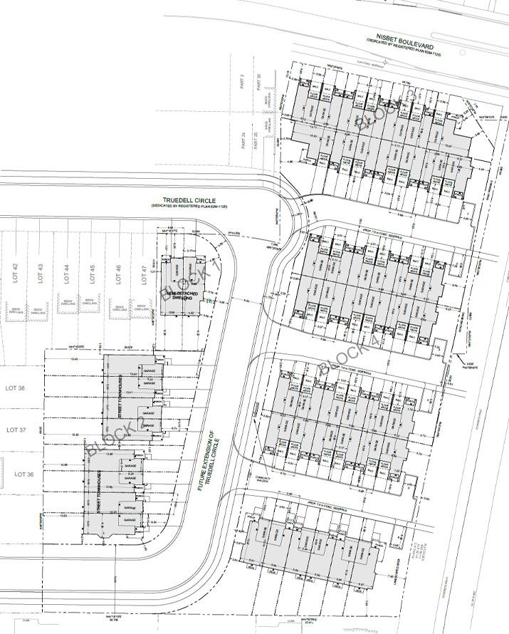
The proposal for the subject property entails a multi-lot residential development for 54 units, consisting of 2 semi-detached units, 14 townhouse units, and 38 back-to-back townhouse units.
Urban Solutions was retained to obtain Building Permits for three, six-storey residential towers.
UrbanSolutions helped advance this project efficiently and in alignment with local planning objectives.
UrbanSolutions secured Zoning By-law Amendment approval on the subject lands to permit a new 161 unit, 11-storey multiple dwelling.
This project involved the redevelopment of the former William Thomas building, built in 1855, into a purpose built student housing development in the historic core of Hamilton.